Объявлены тендеры на строительство жилых домов по ул. Волмянский шлях в Колодищах

На сайте госзакупок появились тендеры на строительство 1-квартирных жилых домов по улицам Волмянский шлях и Михайлов Кут в агрогородке Колодищи. Заказчиком закупок является УКС Минского района, источник финансирования: бюджетные средства.
Согласно опубликованным данным предполагается строительство жилых домов на двух отдельных площадках.
Первая находится в границах улиц Волмянский шлях и Михайлов Кут, там предусмотрено 11 одноквартирных жилых домов, 13 парковочных мест, площадка для игр детей и площадка для отдыха.
Срок поставки по данному объекту: c 15.12.2025 по 29.03.2026. То есть дома планируют построить уже к апрелю следующего года.
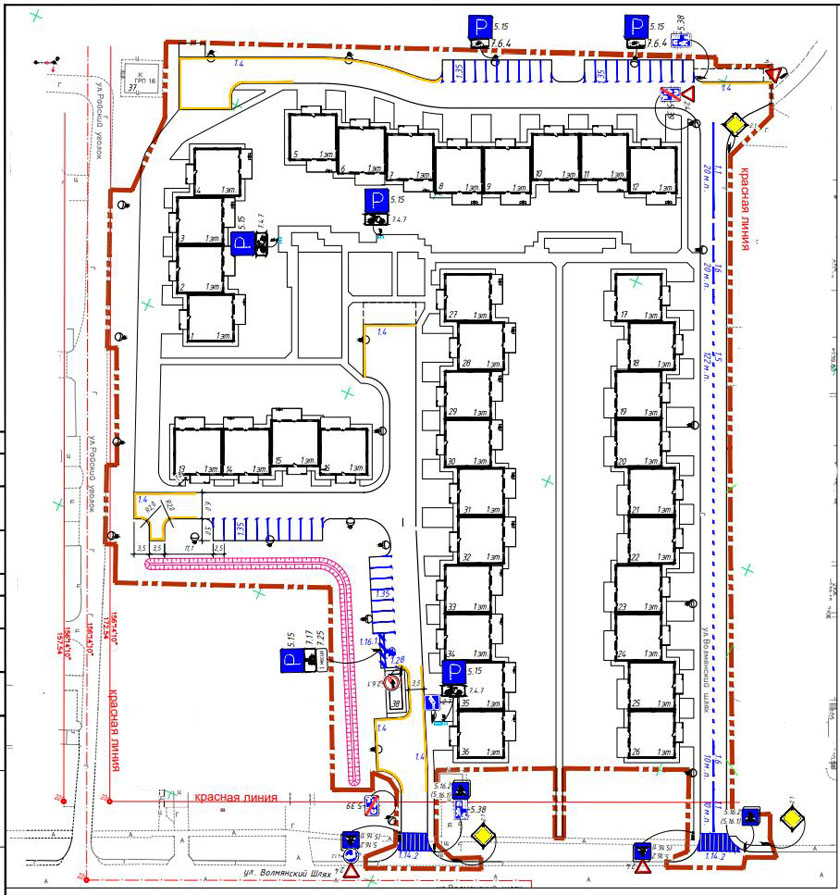
Вторая площадка побольше, находится она в границах ул. Волмянский шлях и ул. Райский Куток. Здесь построят 36 одноквартирных жилых домов (или 35 домов и 1 админ. здание). Предусматривается 38 парковочных мест, детская и спортивная площадки, а также площадка для отдыха.
Срок поставки: с 01.04.2026 по 15.10.2026.
Схема площадки ул. Волмянский шлях - ул. Райский Куток:

В 2022 году проходили общественные обсуждения по архитектурно-планировочной концепции данных объектов. Тогда публиковались такие рендеры домов:

Введите ваш номер телефона (9 цифр: код оператора и 7 цифр номера)